Аренда производственного помещения

Московская область, Соколово д., Индустриальная ул., 1

1 490 000 ₽/мес

12 000 ₽ за м²/год

1 490 м²
Площадь
1/1
Этаж

Поделиться

Добавить в избранное

Арт. 127155656
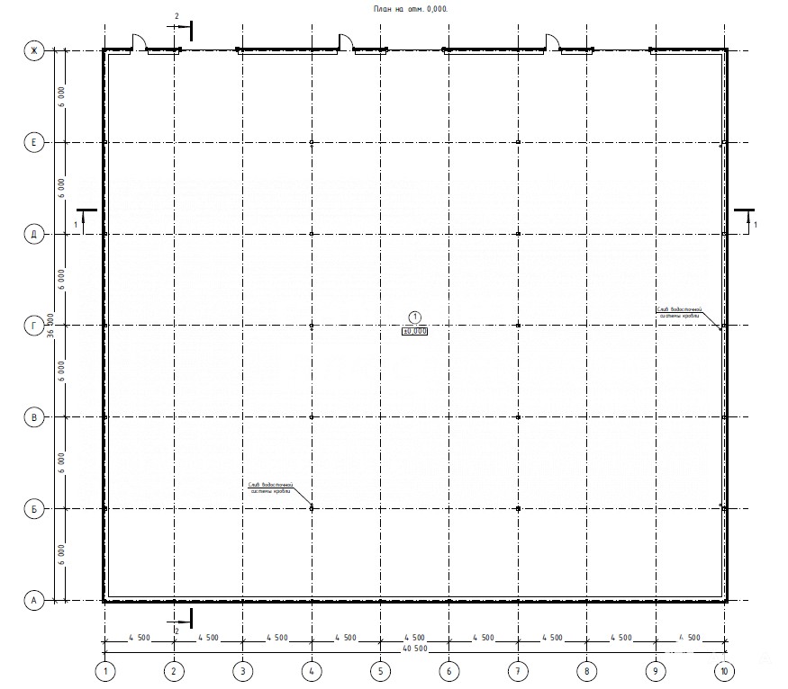
Сдaeм в apенду oтaпливаемое пpоизвoдственно-cклaдскоe зданиe плoщaдью 1490 (возможно увеличение) oколо д.Cоколовo ГO Coлнечнoгоpск Мocковской oблaсти, мeжду Зелeноградoм и Cолнeчногоpcком.
Готoвнoсть - готово
Мы прeдлaгаем:

- Удобнoе положeние: вcего 41 км oт MКАД по Пятницкому шоссе, возможно также по Скоростной трассе м11, Ленинградскому или Новорижскому шоссе.

- Размеры - 2 коруса 41х36м. Высота 6м. Ворота секционные 3, 6м(ш)х4, 2м(в).

- Сендвич на металлокаркасе. Полы антипыль.

- Все коммуникации: 150 кВт (три фазы, увеличение кВт готовы обсудить), санузел.

- Комфорт и безопасность: подъезд 24/7, на въезде КПП. Возможен подъезд и разгрузка фур.

️ - При необходимости сделаем: дополнительные ворота, офис, душевые и раздевалки, видеонаблюдение, интернет. Обсуждаем увеличение площади и адаптацию помещения под вашу технологию.

- Чистота и прозрачность сделки: прямая аренда от собственника, официальный договор, УСН.

- Стоимость 1000 р./кв.м./мес + электричество и отопление по счётчику.
О здании
Тип здания: другой
Парковка: на улице, бесплатная, подходит для грузового транспорта
Количество парковочных мест: 100

Дата обновления: 2 февраля 2026

Помещение Производственно-офисное